新築戸建
物件概要
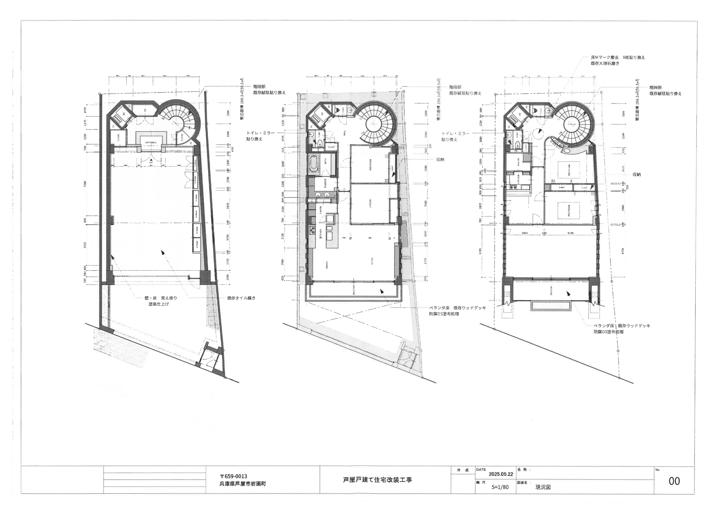
SUMMARY
芦屋市東山町中古戸建
■物件価格45,000万円!!
■階移動もスムーズなホームエレベーター付き。
■9台収納ガレージ付邸宅
■2025年7月リノベーション工事完了
周辺環境
・芦屋市立朝日ケ丘小学校まで徒歩約14分(1096m)
・芦屋甲陽幼稚園まで徒歩約3分(272m)
・コープデイズ芦屋まで徒歩約8分(618m)
・芦屋セントマリア病院まで徒歩約15分(1169m)
| 所在地 | 兵庫県芦屋市東山町9-19 | 交 通 | JR東海道本線【芦屋】駅徒歩9分 |
|---|---|---|---|
| 土地面積 | 245.55㎡ | 建物面積 | 400.02㎡ |
| 間取り | 3LDK | 地 目 | 宅地 |
| 築年月 | 2012年4月 | 構 造 | 木造 地上2階建地下1階 |
| 学区 | 芦屋市立朝日ケ丘小学校 | 駐車場 | 有り |
| 土地権利 | 所有権 | 引渡 | 相談 |
| 取引態様 | 一般媒介 | 建物現況 | 完成済み |
物件情報について
地積、建物床面積、仕様に変更が生じる場合があります。
図面と現況が異なる場合には現況を優先します。
物件情報は最新のものをご提供させて頂きますが、万一売約済の場合はご容赦ください。
掲載物件の取引態様が「仲介」となっているものは、仲介手数料減額物件を除き、ご成約の際に規定の手数料及びそれに係わる消費税を別途申し受けます。
物件情報は最新のものをご提供させて頂きますが、万一売約済の場合はご容赦ください。
建築条件付土地は土地売買契約締結後、一定期間内に当社指定の不動産会社もしくは建築業者と建築請負契約を結ぶことが前提となります。期間中に建築請負契約が成立しなかった場合、土地売買契約は白紙となり、支払った金額は全額返金されます。
お問い合わせはこちらから
相談は無料です!決して無理なご提案は致しません。 お気軽に問い合わせください。
















